Freie Schule
Aktive Schule Dresden


Projekt:

Umnutzung und Umbau eines Bürohausgeschosses in ein Schulgeschoss


Ort:

Dresden-Leipziger Vorstadt


Zeitraum:

2015-2016


Planungsleistungen:

Lph 1-8 HOAI

Architektur-Gesellschaftsspiel-Workshop
Brandschutzkonzept
Barrierefreikonzept


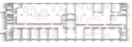
Ein Teil des Büro- und Geschaftshauses soll in Zukunft als Schule genutzt werden. Das jahrgangsübergreifende, individuelle und gemeinschaftliche Lehr- und Lernkonzept soll durch unterschiedlich große, offene sowie abgeteilte Lernräume ermöglicht werden.

Gleichzeitig mussten den umfangreichen technischen und behördlichen Auflagen, resultierend aus der bestehenden Gebäudeart und -nutzung ebenfalls entsprochen werden.

AHA Studio Freie Schule Grundriss

Grundriss

AHA Studio Freie Schule Gesellschaftsspiel

Architektur-Gesellschaftsspiel als Workshop-Grundlage

AHA Studio Freie Schule Aussenansicht

Außenansicht Schulgebäude